
Blue Banana 010

This project explores how industrial production spaces can coexist with residential areas in a symbiotic way, addressing future urban needs driven by reindustrialization—where housing and production merge within the city.
The project combines a coffee roastery with housing for 50 people in Rotterdam’s port, an area already focused on food production and logistics. A roastery fits this context and strengthens its identity as a food industry hub.
Coffee is a global, everyday habit. It connects people, helps to focus at work, and offers comfort under stress. This shared culture bridges production and living, forming a healthy residential and working community.
The building fits the pier’s urban structure, aligning with neighboring buildings. The street is extended to provide delivery access. No extra green space is added; instead, space is reserved for future developments. A public park on the adjacent pier will be available to residents.
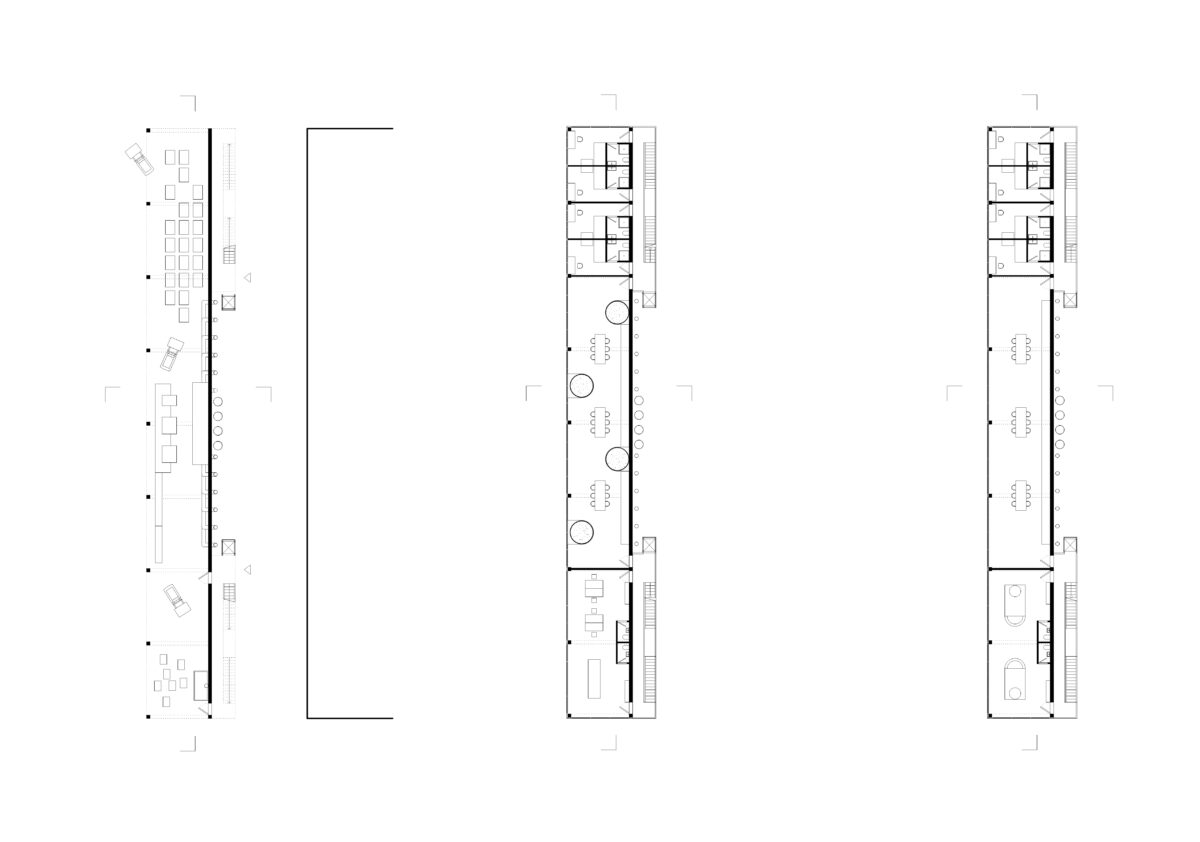
The building has three sections. The southern end hosts the vertically arranged roasting process—delivery, sorting, silo storage, roasting, destoning, degassing, grinding, packaging, and logistics.
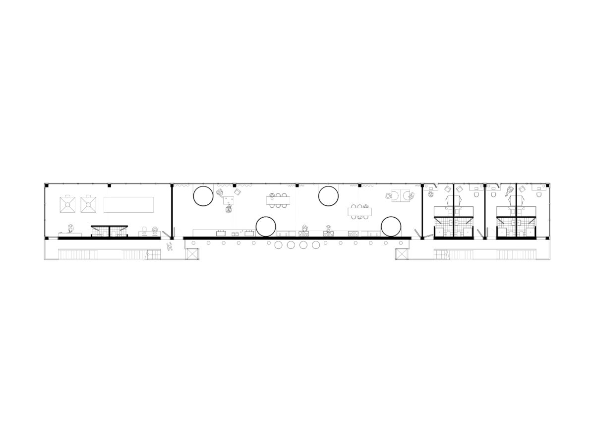
At the northern end are compact single-occupancy rooms with private bathrooms, designed for short stays without kitchens. In the central zone, fully equipped communal kitchen counters replace private kitchens and act as the social core between work and living.
Coffee silos, though functional, are silent and vertical, integrating smoothly into communal spaces and visually connecting users to the production process.
A brick wall runs along the building, housing technical infrastructure. One stair system serves production another connects residential levels.









